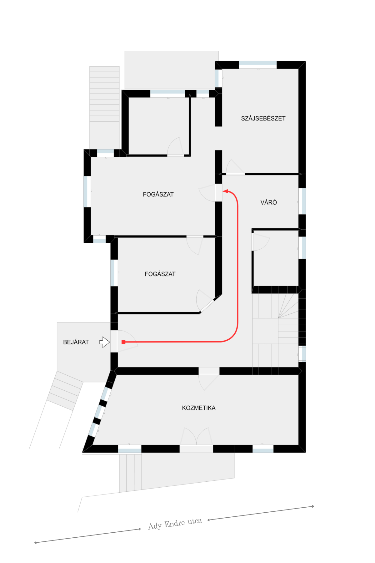
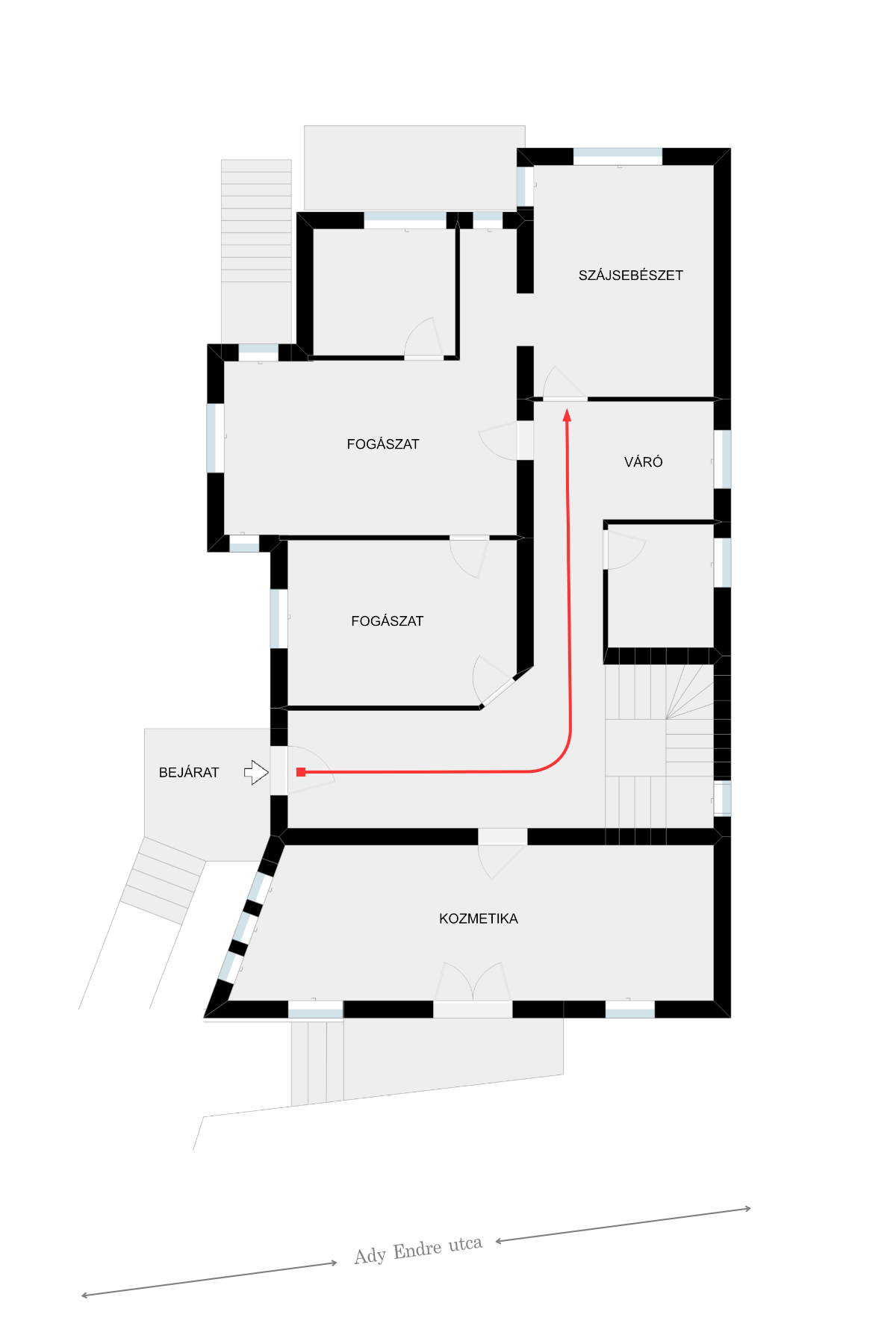
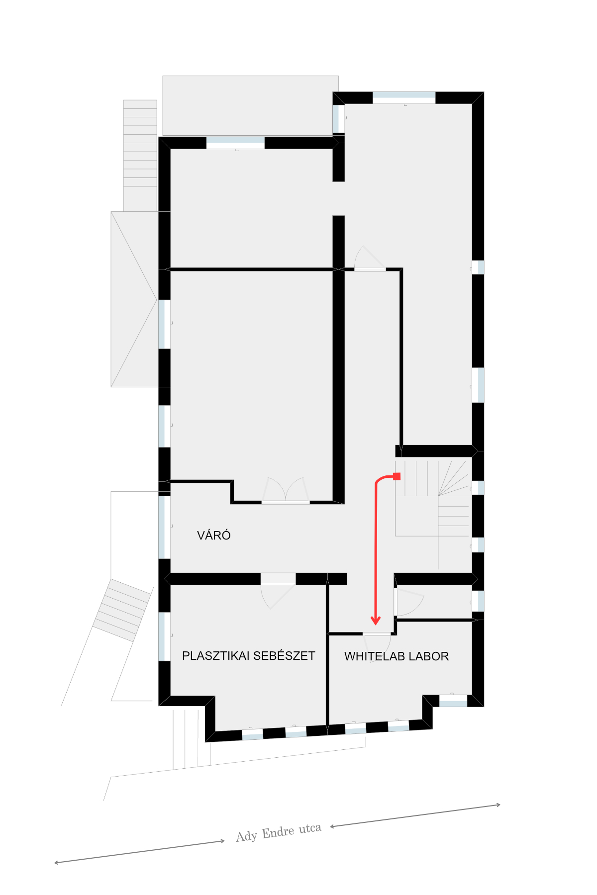
Medicina Klinika Hévíz: épülettérkép
szolgáltatások és szakrendelések helye az épületben
legfrissebb bejegyzések
FOGIMPLANTÁTUM GYÓGYULÁSI IDŐ – SZÁJSEBÉSZET HÉVÍZEN
Mennyi ideig tart a fogimplantátum gyógyulása? A fogimplantátum beültetés ma az egyik legkorszerűbb és leghosszabb távú megoldás a hiányzó fogak pótlására. Sok páciens számára fontos kérdés, hogy mennyi a fogimplantátum gyógyulási ideje, és mikor készülhet [...]
FOGÁSZATI ÁRAK HÉVÍZEN – KEDVEZMÉNYES FOGÁSZATI KEZELÉSEK
Átlátható fogászati árak a Medicina Klinikán A fogászati kezelések ára sok páciens számára fontos szempont a megfelelő fogorvos kiválasztásakor. A Medicina Klinika Hévízen átlátható és kedvezményes fogászati árakat kínál, miközben a kezelések magas szakmai [...]
PRF SZÁJSEBÉSZETI KEZELÉS SAJÁT VÉR SEGÍTSÉGÉVEL
A PRF a természet koncentrált ereje. Az utóbbi időben egyre többet lehet hallani az úgynevezett PRF-fel történő szájsebészeti kezelésekről. De mi is az a PRF és mire használható? Röviden összefoglalva a PRF az angol [...]
FOGÁSZATI ALTATÁS HÉVÍZEN – BIZTONSÁGOS ÉRZÉSTELENÍTÉS FOGÁSZATI KEZELÉSEKHEZ
Fogászati kezelések altatásban a Medicina Klinikán Az általános érzéstelenítés vagy más néven az anesztézia története egyidős az emberiséggel, hiszen már az őskorban is használtak gyógynövényeket azért, hogy a megbetegedett ember érzéketlen legyen és könnyebben [...]


















