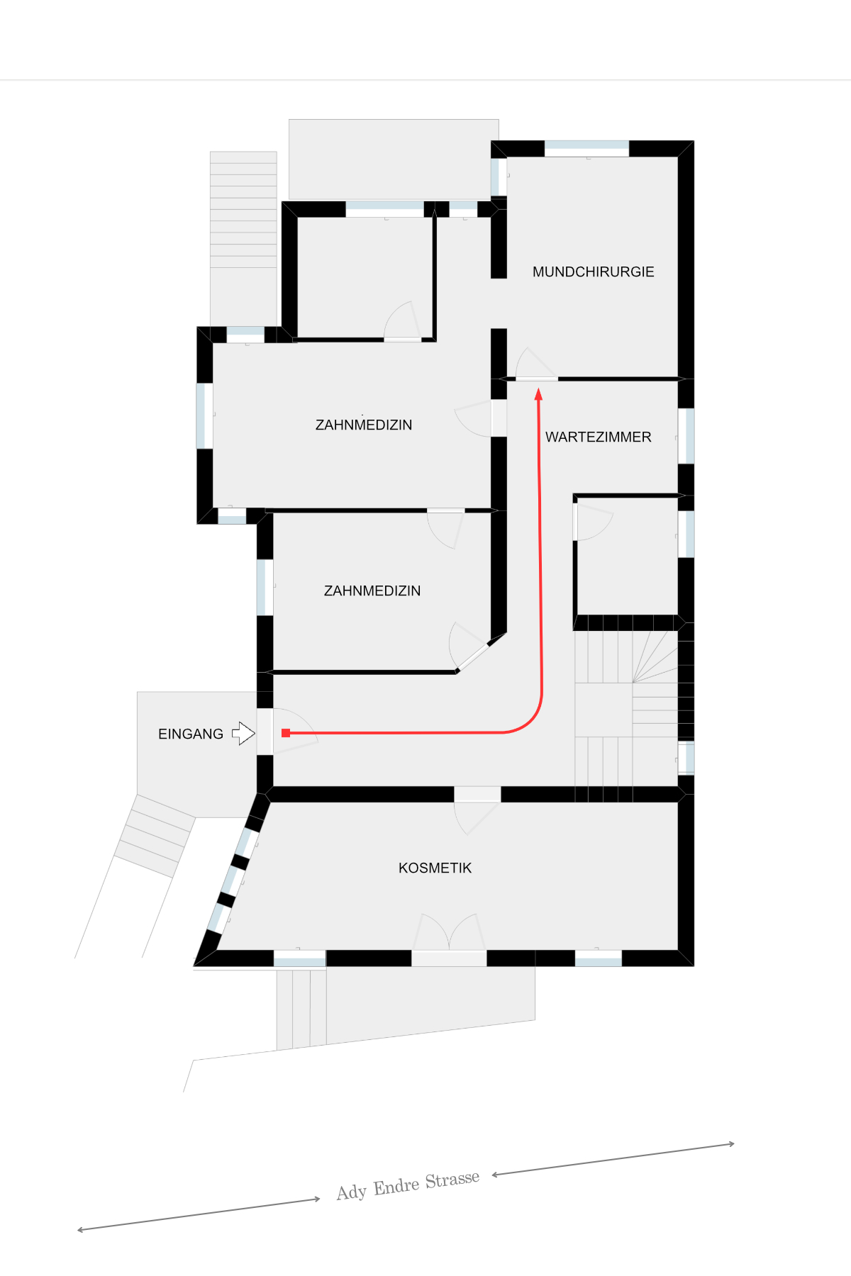
gebaudeplan

standorte der fachambulanzen und dienstleistungen im gebaude

erdgeschooss

zahnmedizin – oralchirugie – kosmetik

zahnmedizin

erdgeschoss

oralchirurgie

erdgeschoss

visage kosmetik

erdgeschoss

obergeschoss

plastische chirurgie –  whitelab labor

plastische chirurgie

obergeschoss

whitelab labor

obergeschoss

untergeschoss

massage – friseur

massage

untergeschoss

friseur

untergeschoss

dachgeschoss

physiotherapie

physiotherapie

dachgeschoss

MEDICINAKLINIKA Hévíz Ady Endre utca 5
Fogászat - Szájsebészet - Plasztikai Sebészet - WhiteLab